We’ve Rebranded! Case Halifax is now HGC Design + Build.
Visit New Site

Locally owned and operated!

Open Concept Basement Remodel

Open Concept Basement Remodel
Open Concept Basement Remodel
Open Concept Basement Remodel
Open Concept Basement Remodel

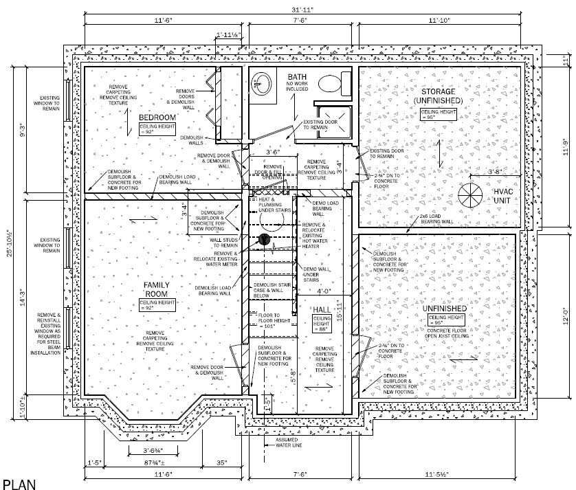
We removed the Halifax homeowners interior load-bearing walls and replacing with all new flush steel beams to create an open family space. The staircase has been redesigned to open up the space even further.

Project Scope: Our team remodeled the existing basement creating an open concept design including new open riser staircase with metal baluster railing, new laminate flooring, new flat drywall ceiling and relocated hot water heater, installed new recessed pot lighting through–out and we replaced all existing electric baseboard heaters including dial thermostats.

Case Design Renders:

Open Concept Basement Remodel
Open Concept Basement Remodel

New floor design plan vs the previous plan and before image:

Open Concept Basement Remodel
Open Concept Basement Remodel
Open Concept Basement Remodel